Services.

Here are the services that we provide below.

Basic - ​​$199.99

This includes fundamental structures such as the location of dwelling units, garages, sheds or outbuildings, pools, and decks. Additionally, it encompasses driveways and parking areas, fences and walls, retaining walls, trees, water features, property boundaries, access points, and a vicinity map if desired. 

W/ Elevation Contours - $249

Basic map details with the addition of lines of equal elevations (elevation contours). 

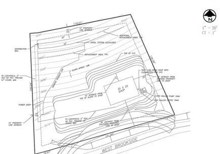
Specialized - $399 - $799

Negotiated price or charged by the hour. Includes special projects such as non-certified grading and sceptic design layouts, and utility locations that can be provided by the county you live in.